
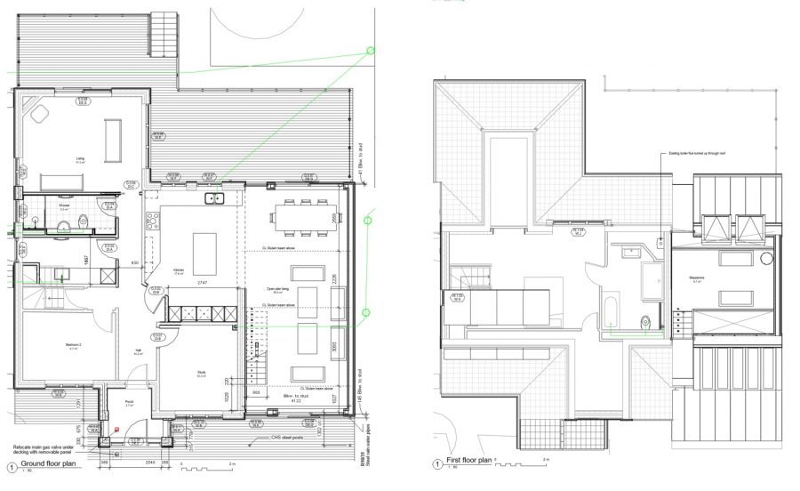
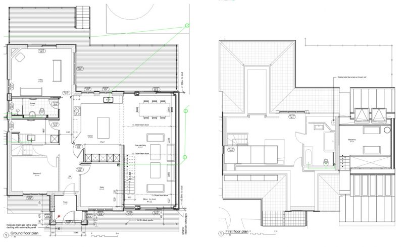
Our clients moved from London to their holiday home in Swanage; the brief was to enlarge the house to allow their growing family to visit, whilst keeping some privacy. Along with designing additional bedroom space we were asked to design a new family room with a south facing terrace to make the most of the stunning views across the town and bay towards Ballard Down. The land falls from the road frontage to the back boundary by over three meters which meant that we had to think carefully about the change of level to the garden.
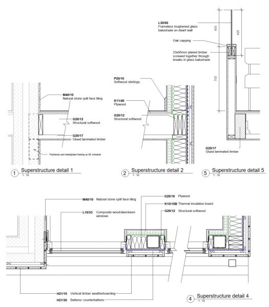
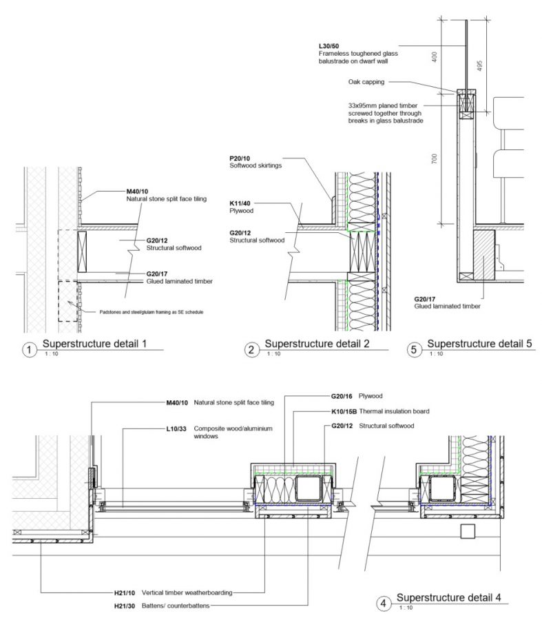
Conceptually we wanted the extension to match the overall proportions of the existing chalet bungalow but decided that we could make a visual contrast by choosing modern finishes and separating the two halves with a large ‘glazed link’ running the full depth of the building. The extension’s roof is clad in a stainless-steel standing seam by GreenCoat, creating a high-quality and durable finish.
We decided that, to make the best use of the space and the fantastic views over the bay, we would incorporate a mezzanine level above the new living space, to function as a study. The size and positioning of the window was crucial, and we were able to visualize the potential view by projecting the actual view onto a 3D model.
We were also able to virtually test possible finishes, both internally and externally, creating a series of renderings to help the clients make a choice. Because of the location we could not offer contract administration, but we did provide detailed drawings and a specification which has allowed the clients to procure the work themselves.
Sally:
We are so pleased with the work Spacemaker have done on our home. From the start, they listened carefully to how we wanted to live and came back with creative, thoughtful ideas that transformed the space.
Their clever use of varied materials and attention to detail has made the house both practical and beautiful. The new layout works perfectly for our family, with plenty of storage and easy access to everything we need. The way the inside now flows into the garden has changed how we use our home, and it is a joy to spend time here with friends and family.
We have had many lovely comments from neighbours and passers-by about how great it looks from the outside too. Spacemaker’s design and innovative ideas have enhanced our lives and given us a space we can enjoy for many years to come. The team were professional, imaginative and a pleasure to work with throughout. Thank you, Ben and Adam.